×

Am Zürcher Stadtrand gelegen, ergänzt der Ersatzneubau den Abschluss der gründerzeitlichen Blockrandstruktur. Die Nähe des Stadions und des Schlachthofes verleihen dem Ort eine raue, urbane Atmosphäre. Die Strassenfassade verfügt über einen zentralen Erker. Sie ist mit einer Rustizierung aus Faserzementplatten verkleidet, die zugleich wehrhaft und zart wirkt. Auf der Hofseite stuft sich die bescheidenere Putzfassade über einen zweigeschossigen Anbau in den Garten herab.

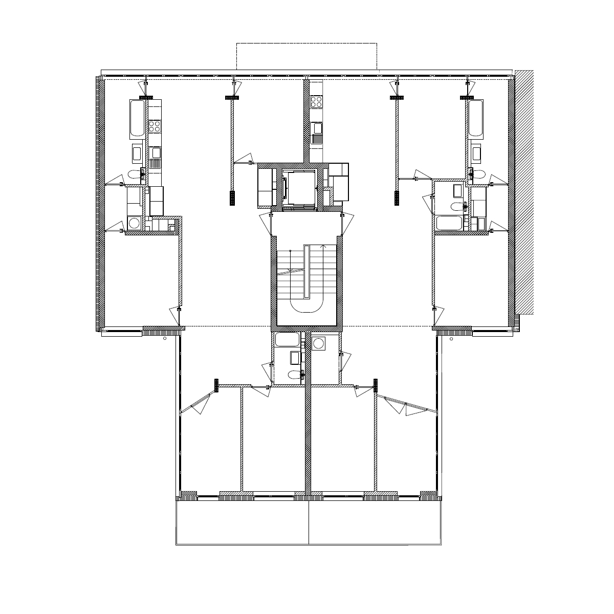
Die Wohnungen besitzen mit einer lichten Höhe von 2.85m und rohen Betondecken urban-industriellen Charakter. Tagsüber schaffen rohe Betonpfeiler und dünne membranhafte Wände das fliessende, offene Raumgefüge eines plan libre. Nachts ermöglicht das Schliessen der zum Teil raumhohen Türen die Intimität einer traditionellen Wohnung aus Einzelzimmern.

Die Wohnungsgrundrisse sind als intelligente Lärmschutzgrundrisse konzipiert, die fast durchgehend das natürliche Lüften von der ruhigen Hofseite ermöglichen. Eine sorgfältig gegliederte, durchgehende Wohnraumfigur mit offener Küche macht die belebte Strassenseite und die ruhige Hofseite gleichermassen erlebbar. Das Hauptschlafzimmer verbindet sich mit einer Ankleide und einem Bad zu einer eigenen, privaten Appartementfigur innerhalb der Wohnung.

Durch die komplexe Schnittfigur mit Erker und Hofanbau entstehen Wohnungen, die geschossweise unterschiedliche und vielfältige Ausblicke in den industriellen Stadtraum des Limmattales eröffnen und so den immanent städtischen Charakter des Ortes für die Bewohner positiv erlebbar machen.

2011-2016
Ort: Zürich, Schweiz
Programm: Mehrfamilienhaus mit 10 Mietwohnungen
Bauherrschaft: Privat
Bruttogeschossfläche: 1240 m2
Status: Gebaut