×

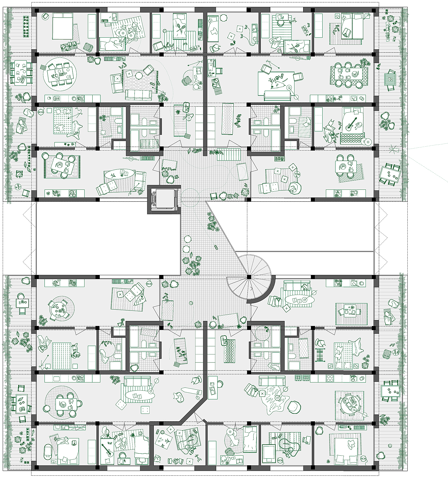
Das neue Wohnhaus der Baugenossenschaft Gesewo ist inspiriert vom Engadiner Bauernhaus mit seinem zentralen Hallenraum, dem Sulèr. Der Sulèr bildet das gemeinschaftliche Herz des Hauses. Er ist als zweigeschossiger Wintergarten ausgebildet, in dem sich der Eingangsbereich, die Waschküche und ein Gemeinschaftsraum befinden. Hier wird gemeinsam gespielt, man trifft sich zum Mittagessen, es wird gegärtnert. In der warmen Jahreszeit lassen sich Waschküche und Gemeinschaftraum zum Garten hin öffnen, Garten und Wintergarten verbinden sich. So kommt der im Baugesetz verankerte Flächenbonus für Wintergärten der Hausgemeinschaft zugute.

Die Wohnungen sind als flexibel möblierbare Hallenwohnungen konzipiert. Sie öffnen sich zu ihren Vorbereichen, so dass geschossweise kleine Nachbarschaften entstehen. Tagsüber stehen die Wohnungstüren offen und die Kinder bewegen sich spielend von Wohnung zu Wohnung. Die äussere Erscheinung wird von der begrünten Holzfassade und den weit auskragenden Vordächern geprägt. Die ausladende Geste der Vordächer verweisen auf den weiteren Landschaftsraum.

Die Bauweise des Wohnhauses ist vorbildlich im Sinne des nachhaltigen Bauens. Es verfügt über eine flexible Platten-Stützen Konstruktion aus Holzpfeilern und Brettstapeldecken. Durch eine Teilunterkellerung und durch den Verzicht auf eine Autoeinstellhalle wird der Aushub und Verwendung von Beton minimiert. Wo möglich kommen im Sinne des zyklischen Bauens wiederverwendete Bauteile zum Einsatz. Die einfache, modulare Grundrissanordnung und repetitive Fassadenstruktur ermöglichen den Einbau von wiederverwendeten Fenstern, Innentüren, Heizkörpern, Küchen und Badelementen, sowie möglicherweise von Fassadenverkleidungen. Die geneigten Vordächer lassen sich als Photovoltaikelemente ausbilden. Die Konstruktion basiert insgesamt auf der Idee der kompositen Figur. Jedes Element ist gemäss seines Lebenszyklus demontierbar und austauschbar.

2024
Location: Wiesendangen, Switzerland

Programme : Housing with small business (co-operative housing)
Client: Gesewo (Genossenschaft für selbstverwaltetes Wohnen)
Gross floor area: 2385 m2
Competition: 3rd prize
Project Status: not built