×

The centrepiece of the restructuring of the Kunstmuseum Thurgau is a distinctive underground exhibition hall. The spatial effect of the new museum space is inspired by Fingal’s Cave, with its geometrical basalt formations, which since the Romantic era has excited people to contemplate the intertwining of architectural and natural forms.

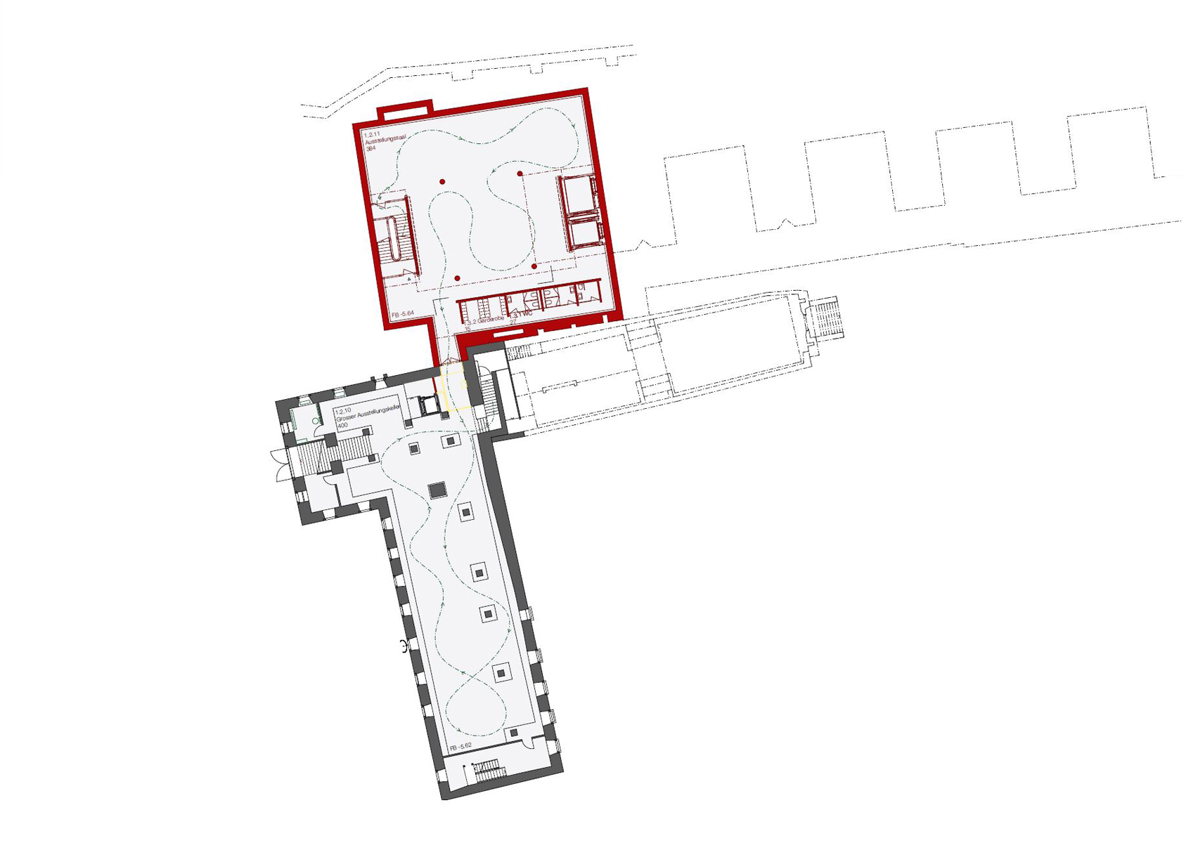
Conceived as a vertical spatial figure, the new exhibition hall connects above and below, the old and the new museum galleries, to form a consolidated circular tour. The attractive spatial cloverleaf figure, consisting of three independent exhibition spaces, responds to the ring-shaped spatial sequence of the cloister complex.

The new exhibition space assumes the appearance of a sunken spatial receptacle, on top of which the monks’ cells are reconstructed. Seen from the exterior, the overall appearance of the charterhouse and the museum remains intact in terms of its organic quality and spatiality. The serial, rhythmic impression of the ancillary buildings, connected via the cloister, the adjacent garden and the long garden strip sheltered by the enclosing wall, all stay entirely untouched.

In terms of exhibition staging, the monks’ cells act as skylights, with the descent, via the steps or lift, affording the visitors a spatial experience. The stairwell is formed as a double-helix, serving both the visitors and staff.

Poured-in-situ concrete walls with a rippled shuttering imprint give the new hall a textile, curtain-like effect. In combination with the thin fibre-cement balustrade and wall panels, the overall effect is an oscillation between light and heavy, massive and shell-like. The guiding aim is to provide artists with a characteristic backdrop – a dialogue between architecture and art.

2022
Location: Thurgau, Switzerland
Programme: art museum modernisation
Client: Kantonales Hochbauamt Thurgau
Net floor space: 2758 m2
Open competition
Project status: unrealised