×

Set at the end of a uniform row of humble apartment buildings from the 1930’s the ten unit apartment building works as a sort of book-end to an incomplete urban block. Its setting is rather dramatic, as it demarcates the end of Zurich’s nineteenth century block structure giving way to the sprawl of the Limmat valley. Serious and lonely, it acknowledges the proximity of two heroic elements of the modern city, the soccer stadium and the slaughter house.

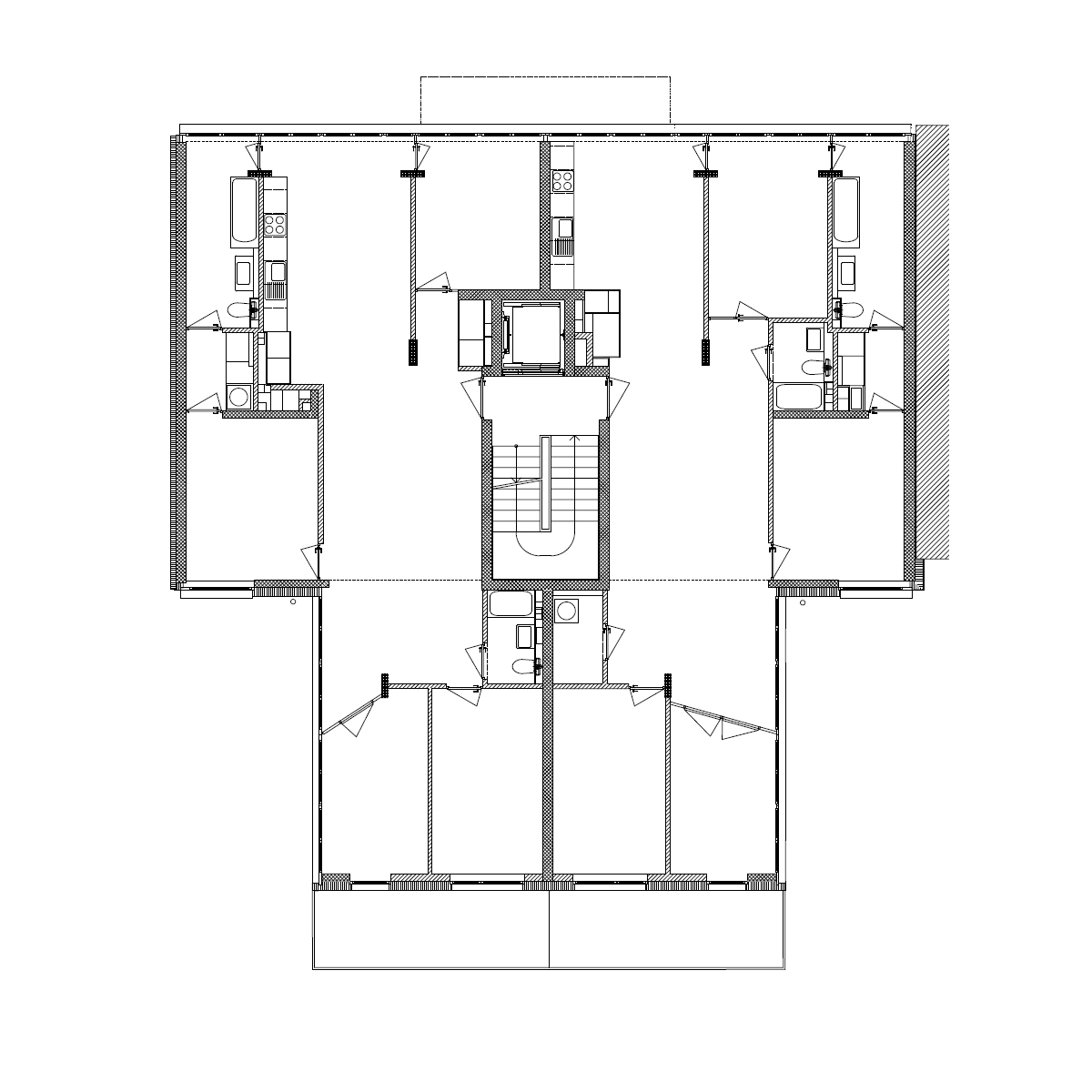
The building’s volume is balanced between a central bay window on the street façade and a volumetric extension in the garden addition. Together, they form an autonomous volumetric figure that emphasizes the building’s self contained isolation, the impossibility of a seamless insertion into the fabric of the city.

The façade is strictly symmetrical with a few casually placed exceptions on street level. In the plan, symmetry and seriality compete with each other for dominance. It reminds us of the disposition of the organs in the human body: symmetrical in principle with a number of carefully balanced elements.

The building’s skin is a ventilated construction of cast fibre cement plates. Its rustication and the narrow spacing of the window mullions make the façade dense and delicate. It gives the building a festive presence that does not lament its solitude but engages with it, positive and proud. The lightness of the ventilated facade and the thinness of the plates unite a monumental facade with a non monumental program.

2011-2016
Location: Zurich, Switzerland
Programme: 10 unit apartment building
Client: Private
Net Surface: 1'240 m2
Status: Built