×

A new idea of the garden city lies at the heart of the project Am Ueberlandpark.

The ASIG Wohngenossenschaft (Arbeiter-Siedlungs-Genossenschaft) is planning a socially responsible renewal of its settlement in Dreispitz. The second phase is defined by the Masterplan Areal Dreispitz and, in terms of planning law, by the Gestaltungsplan Ueberlandpark, which regulates the development of the sub-areas along the new exterior space Ueberlandpark on top of the newly covered highway.

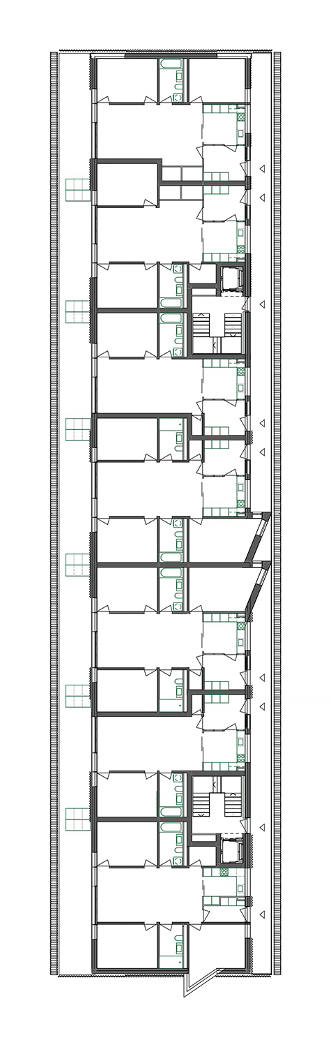
The new urban structure consists of a series of tall and low residential buildings with direct access to the elevated Ueberlandpark, complemented by a residential tower with a kindergarten.

In the linear buildings, the apartments are designed as balcony apartments.
The kitchen serves as the social heart of the apartment, nestled between the access balcony and the living room. At the same time, it creates a sense of privacy for the living area.

The maisonette units have the character of a single-family home. Their communal life gravitates around a centrally located spiral staircase.
The high-rise is inspired by gentle presence of Zürich’s post-war residential towers. Its V-shaped floor plan orients each apartment towards the landscape.

Arcades and spacious balconies give the residential buildings an open and inviting character. The architecture harmonizes with the surrounding green space, and thanks to their scaled solar façades, the buildings evoke the delicate foliage of trees or the feathers of birds.

The community space is connected to the Ueberlandpark by a bridge. Additional facilities, such as flexible-use rooms, a cooking studio, and a meeting point, enrich the community life.

The structural system consists of a column–slab principle with exposed columns and beams, slender floor slabs, and non-load-bearing timber stud walls forming the building envelope. In combination with the gallery access system, this enables long-term adaptability of the buildings to the changing needs of the cooperative.

2022
Location: Zurich, Switzerland
Programme: Residential, kindergarten, day care, communal areas, commercial
Client: ASIG Wohngenossenschaft
Gross floor area: 12'300 m2
Two-stage study contract in a selective process, 1st prize
Project Status: Ongoing