×

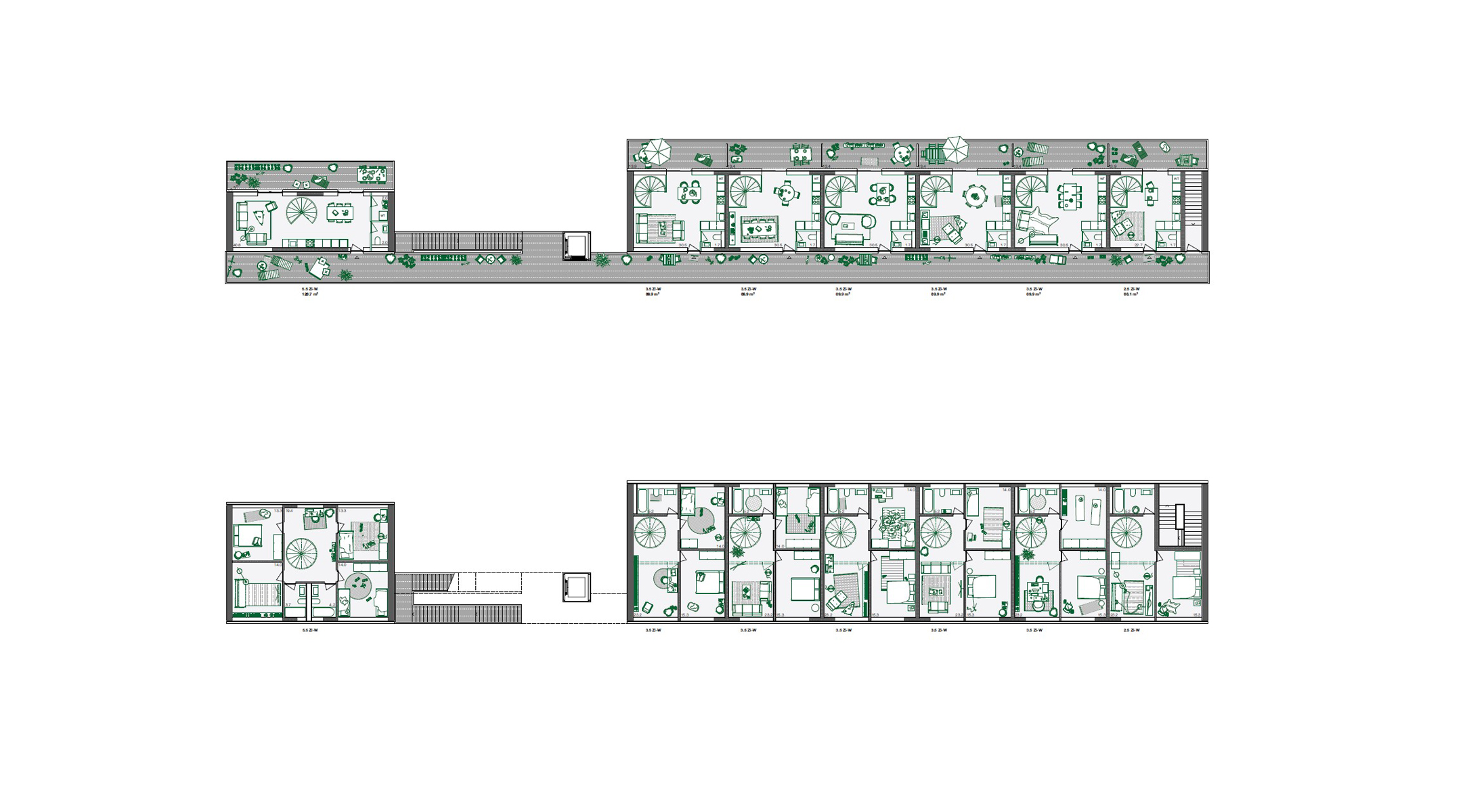
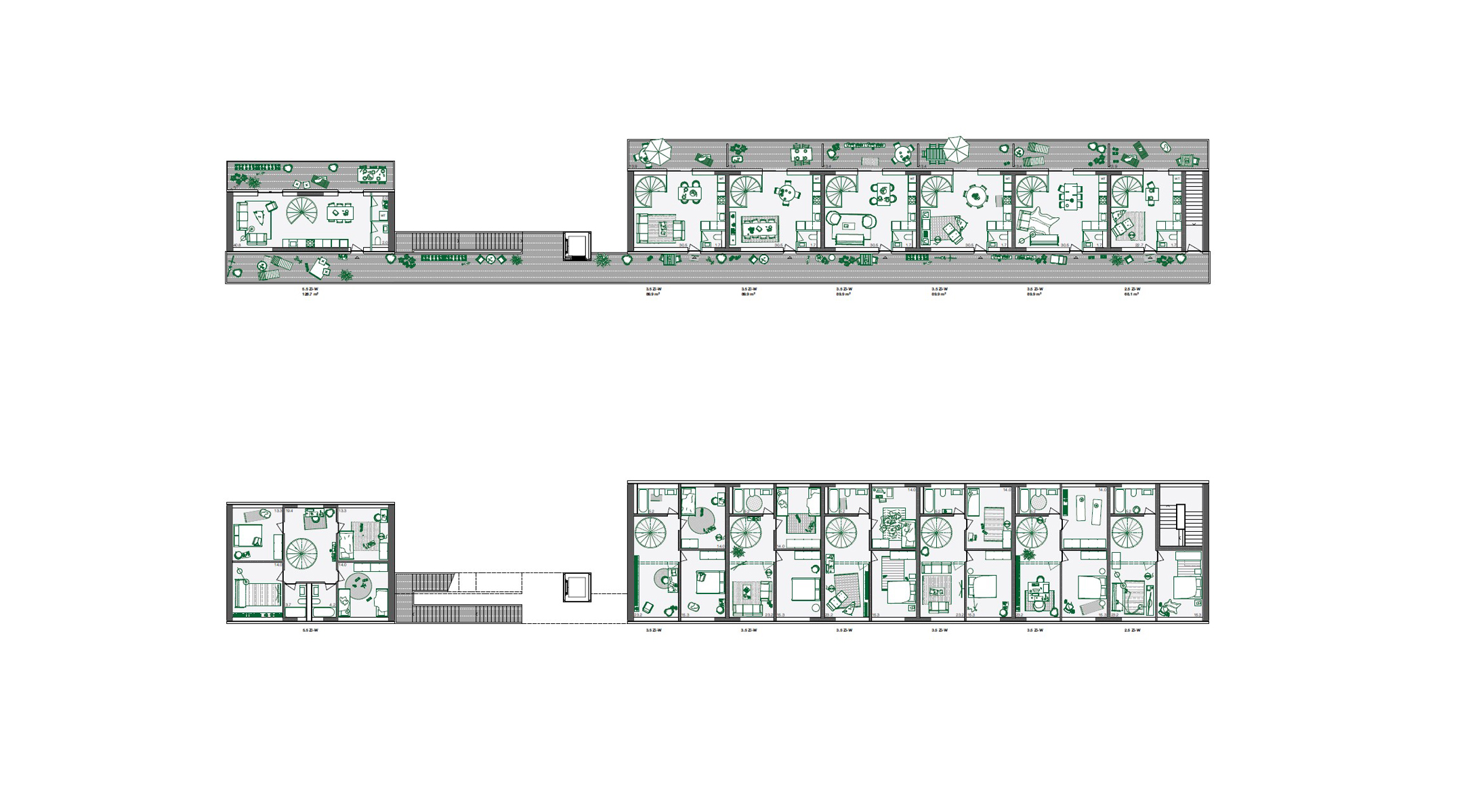
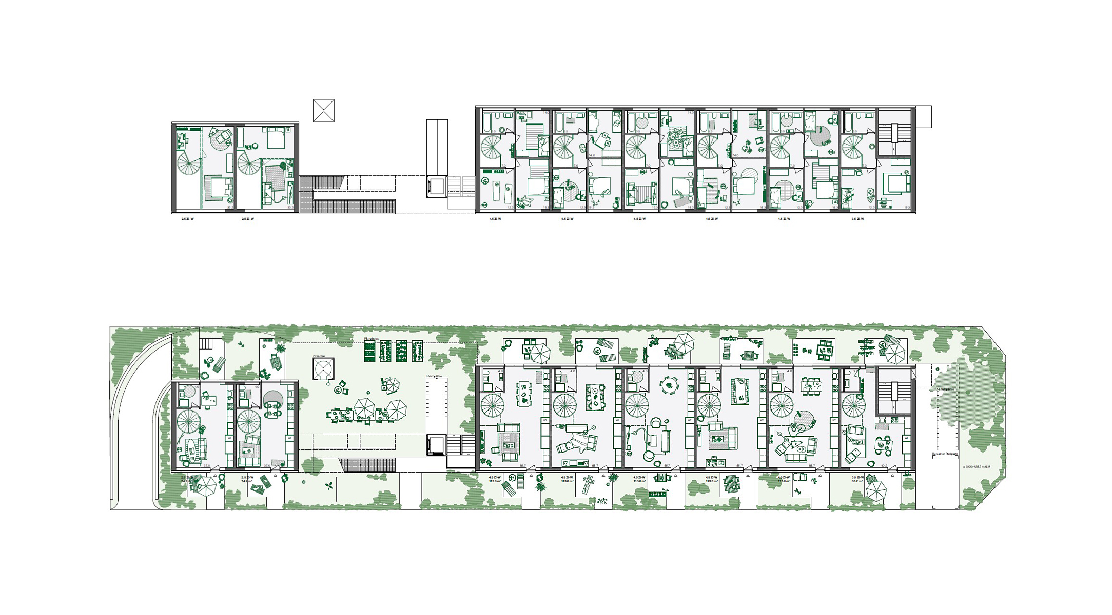
Das neue Wohnhaus an der Wechselwiesenstrasse verbindet den privaten Komfort eines Reihenhauses mit dem Gemeinschaftssinn einer Genossenschaftssiedlung. Das Wohnhaus gliedert sich in zwei Teilkörper, die über einen brückenartigen Balkon miteinander verbunden sind. So entstehen im beschaulichen Inneren des grünen Siedlungsgefüges von Schwamendingen fünfzehn zweigeschossige Einheiten mit dem Charakter privater Reihenhäuser.

Zwischen den beiden Baukörpern entsteht ein gemeinschaftlicher Gartenraum mit einer Terrasse, Spielflächen, einem Pizzaofen und Pflanzbeeten. Hier findet das nachbarschaftliche Leben der Anlage statt. Man trifft sich, isst, spielt und gärtnert gemeinsam. Die erdgeschossigen Einheiten werden über ihren privaten Vorgarten und ihren rückwärtigen Küchengarten zu richtiggehenden Gartenhäusern. Die Terrassen der oberen Wohnungen werden durch Pflanzen und Blumen zu üppigen Dachgärten.

Die zweigeschossigen Wohnungen werden über eine Wohnhalle betreten, in der auf direkte, unkomplizierte Art das Zusammenleben mit Wohnen, Kochen und Essen stattfindet. Entlang der Längswand vereinen sich Garderobe, Reduit mit Waschturm und Küche zu einem multifunktionalen Wandmöbel. Eine grosszügige Wendeltreppe führt in das ruhigere Geschoss mit den privaten Zimmern und Bädern. Die Wendeltreppe wird zu einem raumbildenden Möbel und kann vielseitig als Aufenthaltsort oder Bibliothek bespielt werden.

Die Bauweise, Materialisierung und Haustechnik ist in punkto Nachhaltigkeit, Bauteiltrennung und Wirtschaftlichkeit vorbildlich. Die Schottenstruktur der beiden Teilhäuser ist einfach und auf eine Holzbauweise hin optimiert. Die Fassaden sind mit einer hinterlüfteten Holzverschalung verkleidet.

2021
Ort: Zürich, Schweiz
Programm: 2 Mehrfamilienhäuser mit 15 Mietwohnungen und gemeinschaftlichem Garten
Bauherrschaft: Baugenossenschaft Rotach Zürich
Bruttogeschossfläche: 2’668 m2
Wettbewerb im selektiven Verfahren
Projektstatus: nicht gebaut