×

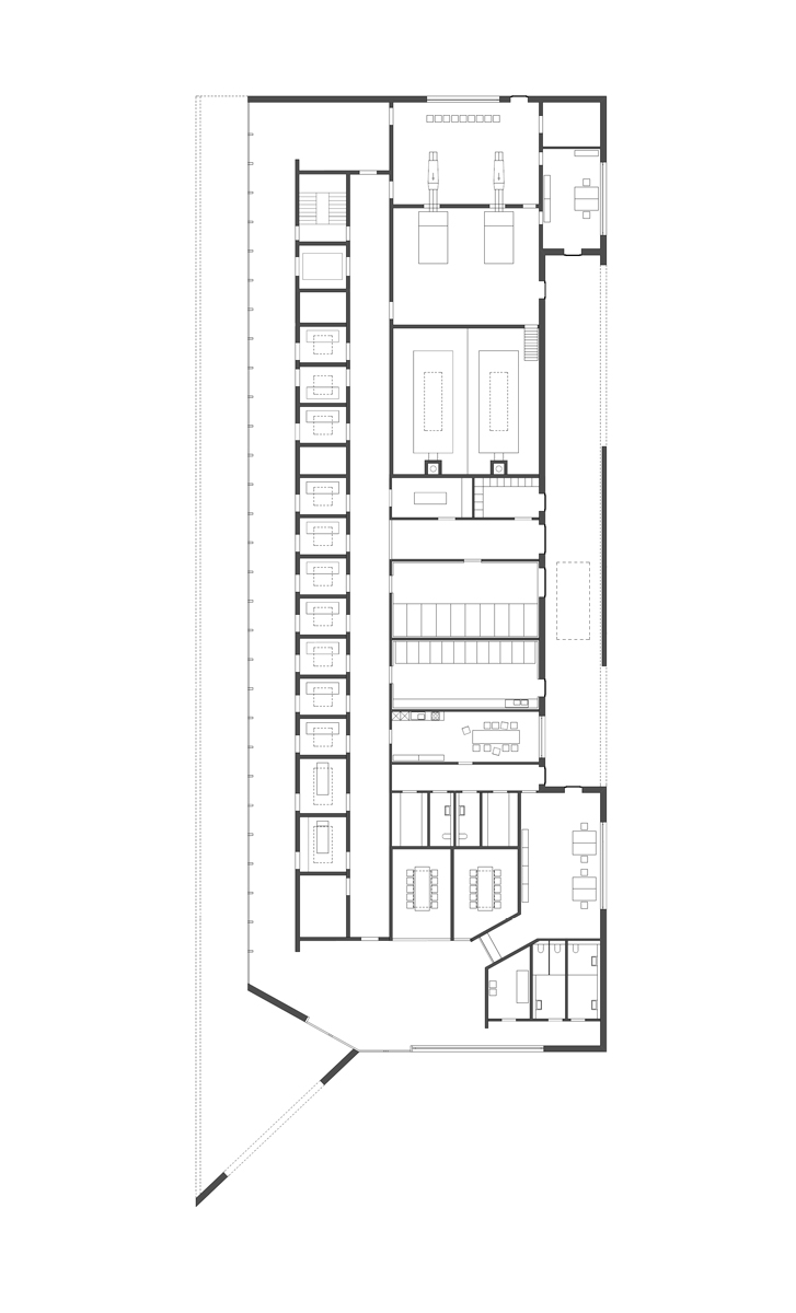
Die Neubauten des Krematoriums und des Friedhofsunterhalt sind als horizontal lagernde Baukörper Teil des parkartigen Grünraums der Friedhofsanlage Thun–Schoren.

Das neue Krematorium entwickelt sich über eine torartige Eingangsgeste in die Tiefe des Grünraumes. Wie ein Stoa-Gebäude öffnet sich der einfache Baukörper mit einem ausladenden Dach zum bestehenden Friedhof und schliesst diesen zugleich nach Süden hin ab. Vor dem Hintergrund des Alpenpanoramas gewinnt das Gebäude als gebauter Horizont an gelassener Monumentalität.
Das neue Krematorium ist ein Holzbau, der die Ofenräume aus Stahlbeton umhüllt. Die Fassade nimmt mit ihrer vorpatinierten Holzschalung Bezug auf die lokale Bauerhaustradition. Einzig die prominentesten Elemente der Eingangsfassade und der markante Fries des Vordaches werden aus dünnen Faserzementplatten gebildet.

Durch seine betont horizontale Ausdehnung und die zarte, fast zerbrechliche Materialisierung gewinnt das Krematorium einen Ausdruck von Würde und angemessener Monumentalität, ohne schwer zu wirken. Im Inneren sind das Foyer und der Besuchergang mit einer Schalung aus natur belassenem Holz verkleidet. Die Aufbahrungszimmer und der Ofenvorraum sind als „Stuben“ formuliert. Sie erhalten zusätzlich eine Verkleidung, die aus grossformatigen Holztafeln gefügt ist.

2015
Ort: Friedhof Thun-Schoren, Schweiz
Programm: Krematorium
Bauherrschaft: Einwohnergemeinde Thun
Bruttogeschossfläche: 1960 m2
Wettbewerb
Projekt Status: Nicht gebaut