×

Seit dem Bauboom der Nachkriegszeit gehört der Bautypus des Terrassenhauses zum festen Bestand des Schweizer Wohnungsbaus. Mit seinem gestuften Volumen und seinen grosszügigen Terrassen mit Fernblick bildet das Terrassenhaus eine beliebte Antwort auf die Frage nach dem modernen Wohnen in der der Landschaft. Bei den neueren Terrassenhäusern wird die Tiefgarage und ihre Einfahrt zum prägenden Element einer suburbanen, vom Automobil bestimmten Lebenswelt.

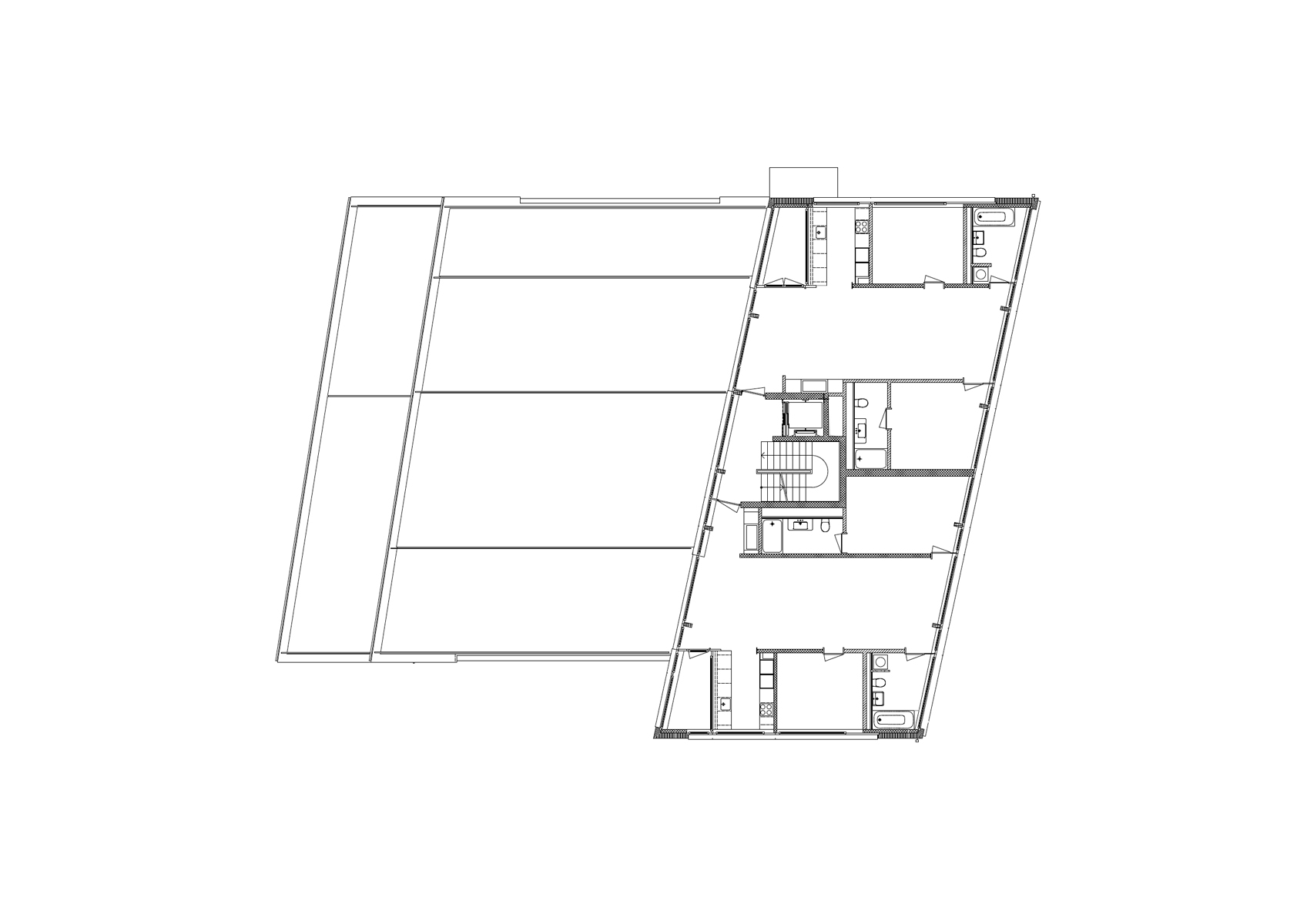
Unser Terrassenhaus bekennt sich zum modernen, antiromantischen Charakter des Bautypus. Seine acht Wohnungen befügen über grosszügige Terrassen mit einem phantastischem Fernblick ins Elsass. Die Gebäudeform ist jedoch das Ergebnis einer rationalen Strategie, mit dem Ziel, die Mietflächen zu maximieren. So entstanden serielle Grundrisse und Fassaden, ganz ohne kompositorische Brechungen. Die Grundrisse bestehen aus parallelen Linien, welche in die leicht verzogene Gebäudeform einbeschrieben sind.

In den Fassaden werden mehrere Fenster zu einem Kastenfenster zusammengefasst, dass an durch seine Rahmung an Skulpturen der Minimal Art erinnert. Die Geländer zur Landschaftsseite bestehen aus einem strengen Gitterraster während die Absturzsicherungen an den Seiten aus einfachen Maschendrahtzäunen bestehen.

Die Wohnungen sind um eine zentrale Wohnhalle organisiert, die sich von der Terrasse in die Gebäudetiefe erstreckt. Die Halle ähnelt dem Portego, der tiefen Wohnhalle der Venezianischen Paläste. Sie wird von beiden Seiten von Schlaf- und Arbeitszimmern, der Küche und dem Wintergarten flankiert.

2017-2020

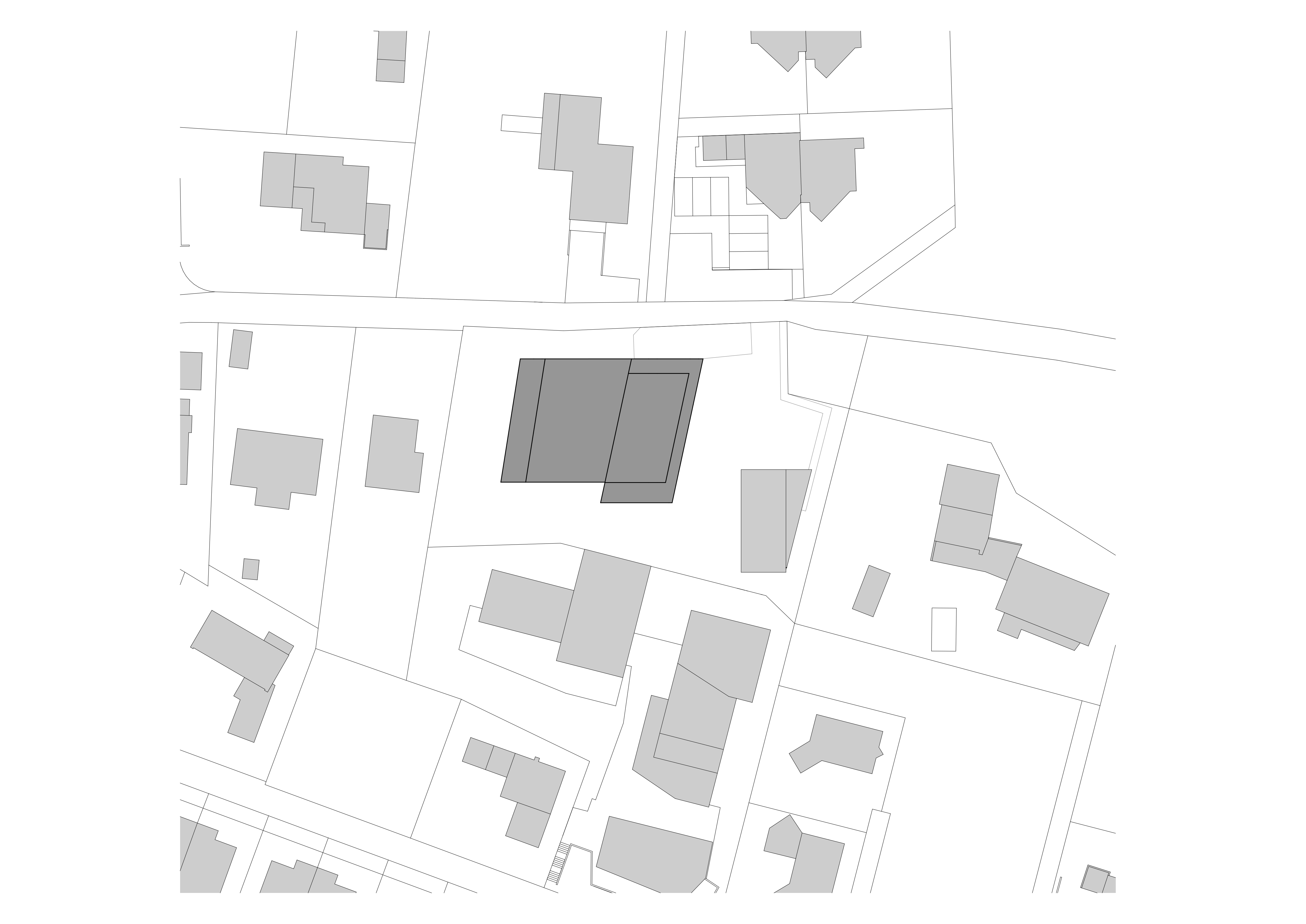
Ort: Therwil, Schweiz

Programm: Mehrfamilienhaus mit 8 Mietwohnungen

Bauherrschaft: Privat

Bruttogeschossfläche: 1’358 m2

Wettbewerb auf Einladung, 1. Preis

Projektstatus: Gebaut