×

Das Mehrfamilienhaus Köchlistrasse lässt sich vom heiteren Lebensgefühl der Niederländischen Moderne inspirieren.

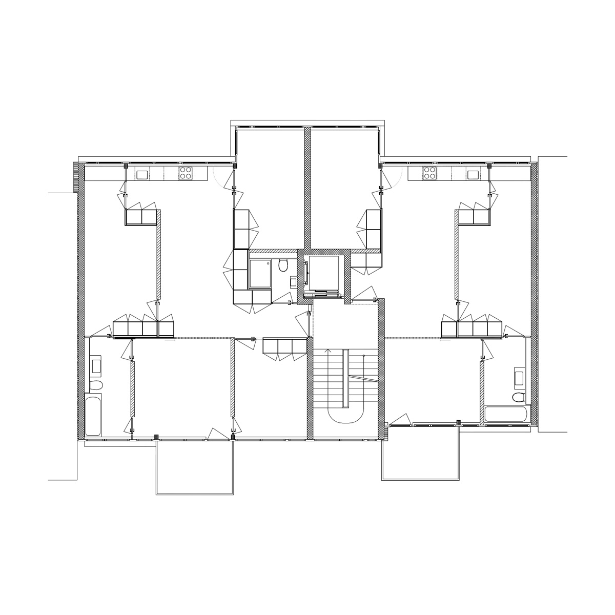
Die Grundidee der Wohnungen besteht darin, die Einzelräume zu einem fliessenden Raumgefüge zu verschränken. Wandscheiben, Einbauschränke und präzise gesetzte Türen schaffen eine räumliche Ordnung, in der sowohl ein offenes Lebensgefühl wie auch der Rückzug in die Privatheit eines geschlossenen Zimmers möglich ist. Sogar der Wohnraum kann über eine Schiebetüre vom Entrée und von der grosszügigen Essküche getrennt werden. So entstehen Wohnungen, in denen das Verhältnis von Offenheit und Privatheit von unterschiedlichen Bewohnergruppen auf vielfältige Weise und ohne bauliche Massnahmen immer wieder neu interpretiert und ausgehandelt werden kann. Linoleumböden in allen Räumen und gestrichene Holzschränke und -türen erzeugen eine moderne Wohnlichkeit. Die Fassaden bestehen aus verputzten Brüstungstafeln mit einer Bemalung aus feinen geometrischen Kreismustern. Im Zusammenspiel mit dem figürlich-expressiven Erdgeschoss entsteht ein angemessener Ausdruck für die sanfte Utopie des genossenschaftlichen Zusammenlebens.

Eine konventionelle Bauweise mit Stahlbeton und Mauerwerk wird ergänzt durch eine Fassadenkonstruktion in Holzbau. Die in den Wohnungen entwickelte Idee des räumlichen Möbels findet so in der Fassade ihre Fortsetzung.

2019
Ort: Zürich, Schweiz

Programm: 10 Wohnungen, Büroraum

Bauherrschaft: WOGENO

Bruttogeschossfläche: 1’006 m2

Wettbewerb 

Projekt Status: Nicht gebaut